Appartement Havinnes

Promotion immobilière - Boutribati - Appartement Havinnes

Informations

Type de bien :

Appartement

Localisation :

Havinnes

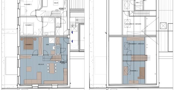
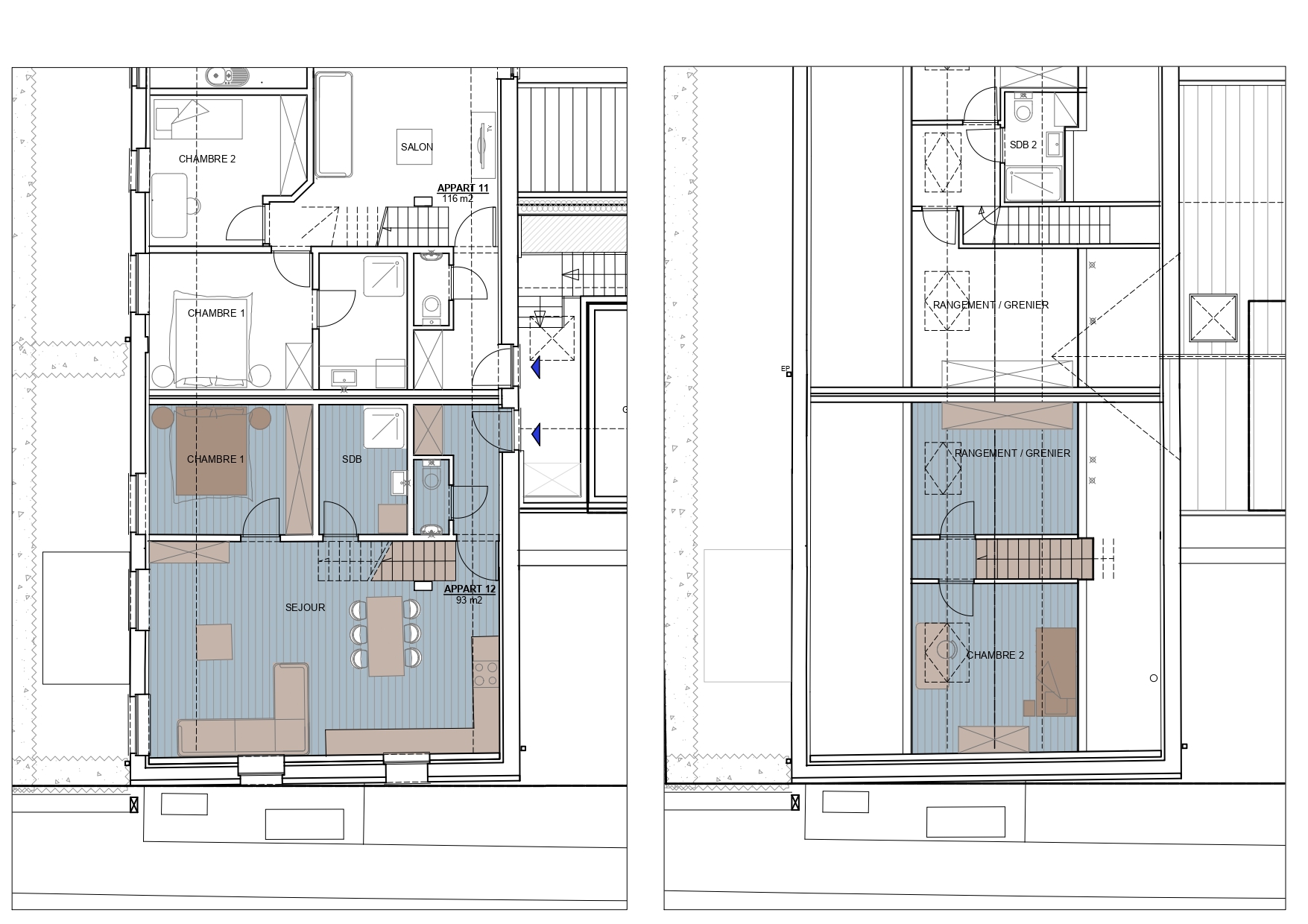
Surface :

+/- 93 m²

Prix (à partir de) :

210.000€ (HF)

Projet neuf à Havinnes

Superbe appartement 2 chambres en duplex avec jardin de 74 m2. Ce bien vous séduira par sa cuisine équipée moderne et fonctionnelle, sa salle de bain élégante avec douche et meuble lavabo, ses deux chambres spacieuses, idéales pour une petite famille ou investissement. Le charme d’un duplex offrant volumes et luminosité.
Situé dans le joli village de Havinnes, cadre paisible et bien desservi.

Prix attractif – À découvrir rapidement !

Nombre d'appartements vendus
90%

Détails

Appartement

Détails supplémentaires

Plans

Plus de photos

Je suis intéressé(e)