Maison 2 Havinnes

Informations

Type de bien :

Maison

Localisation :

Havinnes

Surface :

+/-146 m²

Prix (à partir de) :

282.000€ (HF)

Projet neuf à Havinnes

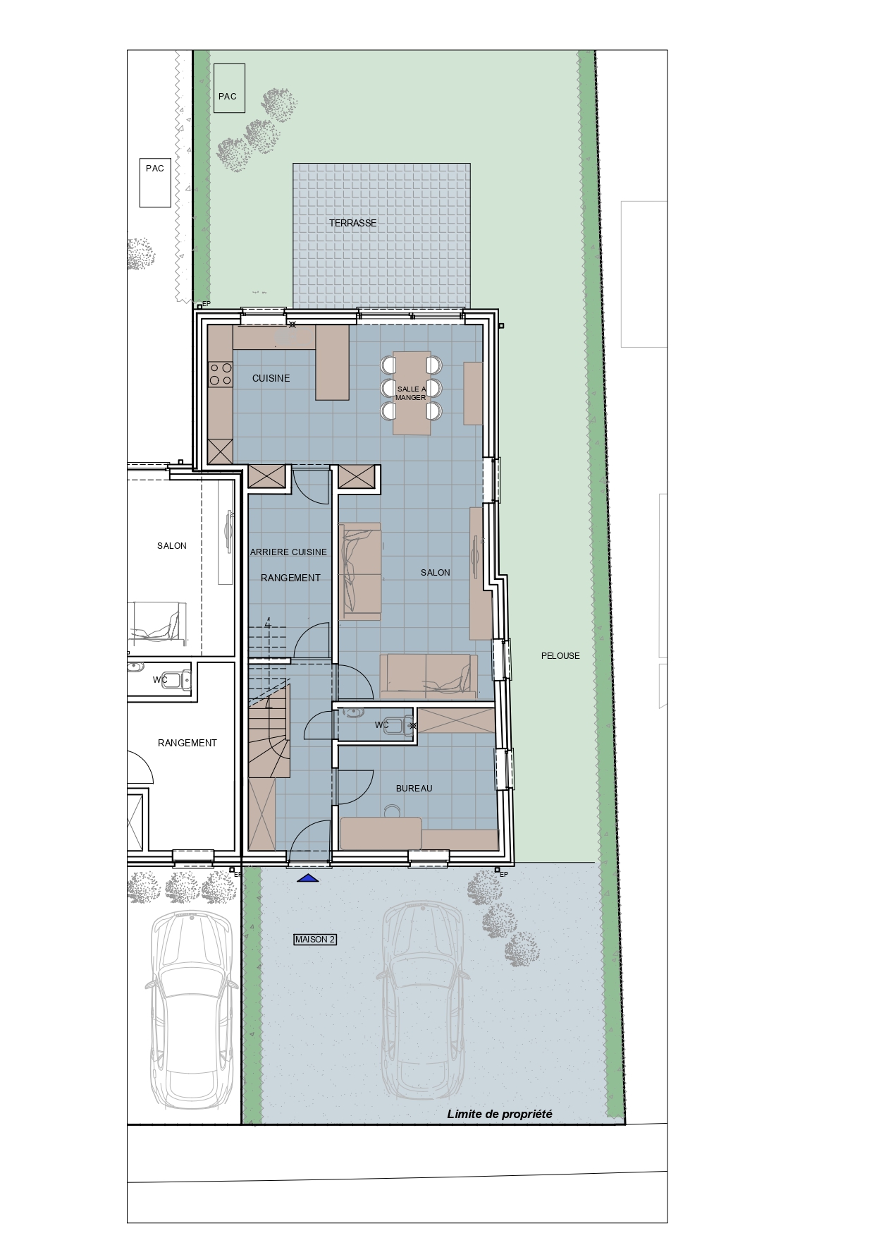
Maison semi-mitoyenne (+/-146 m²) avec jardin sur 378 m² sise au coeur du village d’Havinnes.
Le bien comprend au rez-de-chaussée : un débarras, un salon, une salle à manger, une cuisine et un WC.
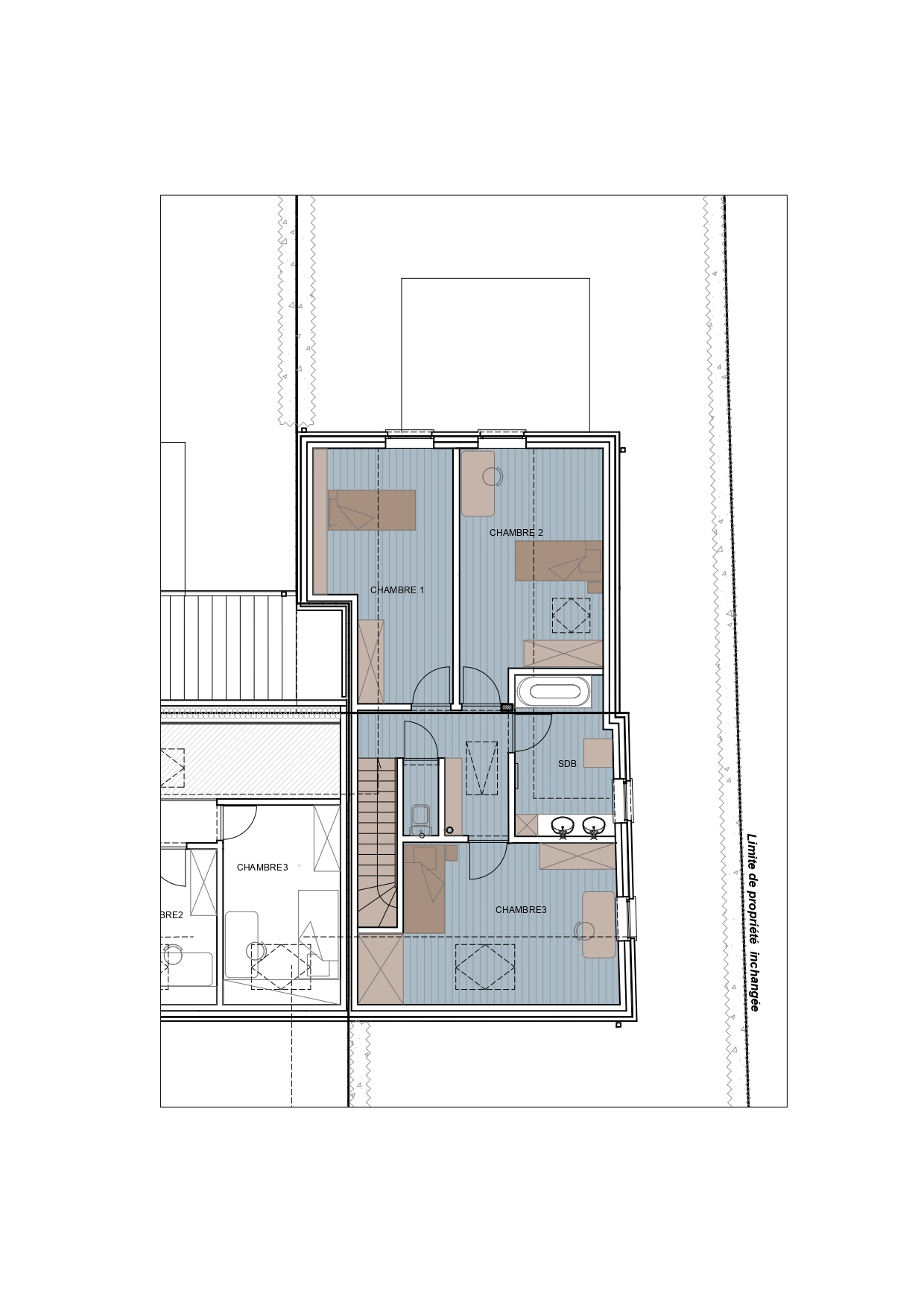
A l’étage : 3 chambres, une salle de bains et un WC séparé.
Une terrasse et un jardin privatif.
Livraison prévue pour fin 2025.

Nombre d'appartements vendus
90%

Détails

Maison

Détails supplémentaires

Plans

Plus de photos

Je suis intéressé(e)